Innenschwimmdecken
Innenschwimmdecken Typ VARIOFLOAT®
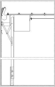
Randprofil
mit Ringspaltabdichtung
Typ IM-IGHS2
Die Lieferung erfolgt einbaufertig konfektioniert, inklusive Ringspaltabdichtung
Typ IM-IGHS2, einschließlich Verbindungselementen und besteht in der Regel
aus folgenden Komponenten:
- Schwimmkörper aus Edelstahl an der Peripherie und über die Fläche verteilt.
- Membrandeckbleche, wahlweise aus Edelstahl oder Aluminium.
- Alle übrigen Metallteile aus Edelstahl.
Peilrohrabdichtung
Mannloch
Innenschwimmdecke Typ VARIOFLOAT®
© Ingenieurbüro Imhof GmbH • Otto-Hahn-Str. 12 • 63165 Mühlheim/Main • Tel. +49 (0) 6108 / 60 999 • info@imhof-tanktechnik.de

